Une grange en Loft :
Aménagement et extension d'une ancienne grange en maison individuelle type loft à Compiègne (60)
Réhabilitation d'une grange :
Lieu : COMPIEGNE (60)
Missions : Esquisse - plans
Coût des travaux : N.C
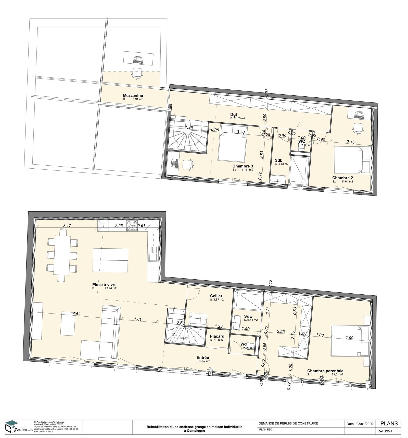
Le projet ci-joint est l'aménagement d'une ancienne grange en maison individuelle.
Cette grange, en RDC est constituée de mur en brique et en pierre avec une structure en bois sur laquelle une belle charpente traditionnelle vient couvrir l'ensemble.
Le projet est de rehabilité cette grange mais également de l'agrandir avec une extension en surélévation. En effet, une surélévation moderne va venir s'emboiter sur la moitié de la grange afin de gagner de la surface.
Ce projet comprend une entrée, une pièce à vivre avec une cuisine ouverte (cette espace profite d'un beau volume sous faitage avec la charpente apparente), puis on trouve une suite parentale ensuite à l'étage, qui est dans la surélévation du projet, on a deux chambres et une salle de bain.
Vous avez un projet de construction, rénovation
 ou d’aménagement à nous soumettre ?
Contactez-nous pour obtenir une étude personnalisée de votre projet








