Aménagement intérieur à Compiègne (60)
Aménagement intérieur d’une maison individuelle
Lieu : Compiègne (60)
Missions : Esquisse, Dossier de consultation des entreprises, Suivi de travaux En cours
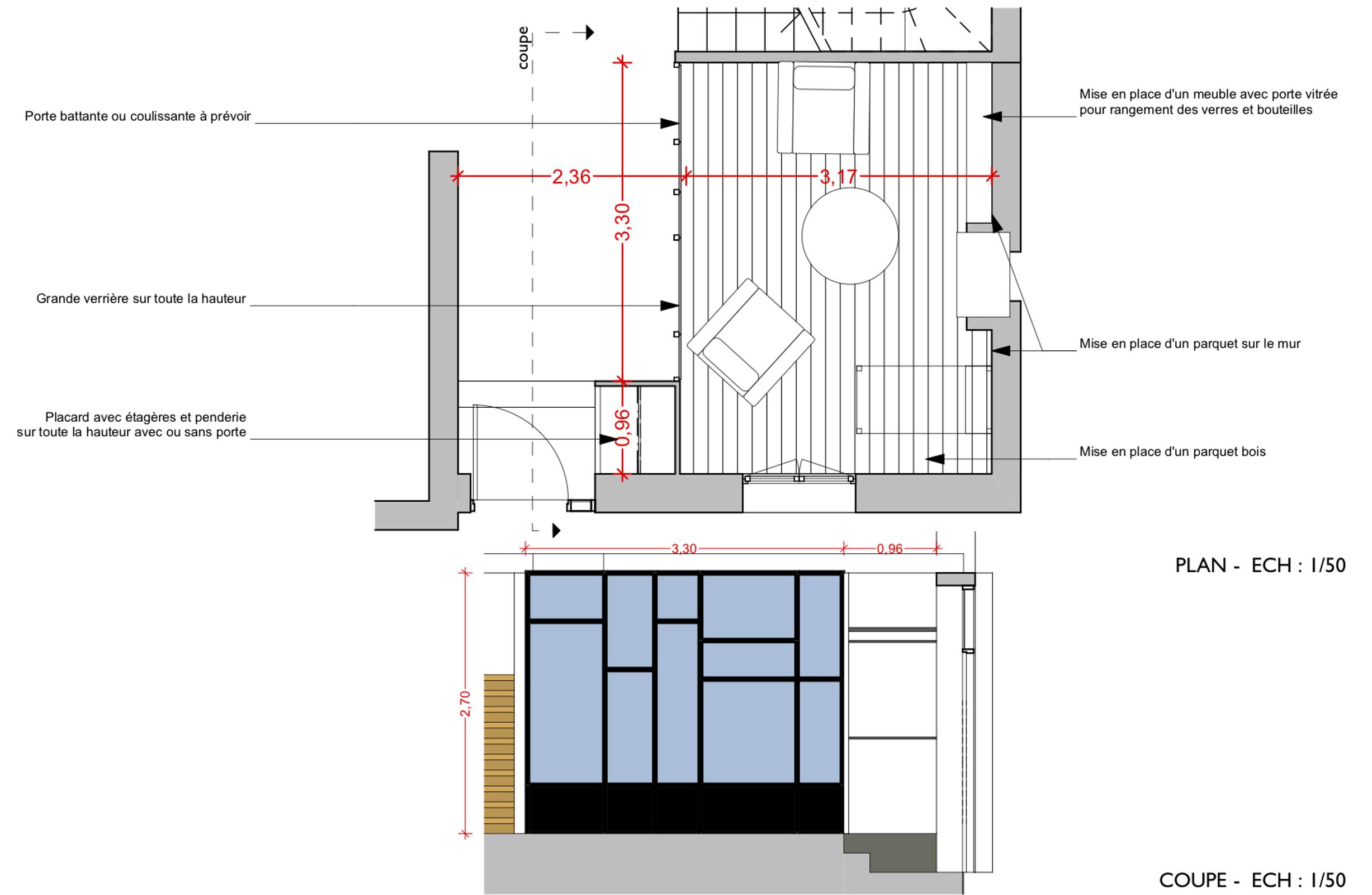
Le projet consiste à l’aménagement d’une pièce environ 20 m2 à l’entrée d’une une maison individuelle. Les clients avaient pour envie de lui donner une fonction particulière et de pouvoir en profiter pleinement. Leur envie, était d’avoir un espace fermé afin de s’isoler du reste de la maison qui est entièrement ouverte (salons, salle à manger et cuisine).
Afin de ne pas cloisonner cette espace, le principe de la verrière était la solution. Cette espace devait servir de lieu pour exposer et déguster du whisky. Une ambiance chaleureuse composé de parquet bois, de revêtement muraux graphique et de lumière a été proposé.
PROJET EN COURS
Vous avez un projet de construction, rénovation
ou d’aménagement à nous soumettre ?
Contactez-nous pour obtenir une étude personnalisée de votre projet






